Tarihi : l3.yy
Banisi: Yapının banisi bilinmemektedir Mengücekliler’e ait bir kümbet
yakınında bulunduğu için Mengüç hanedanı döneminde lalalık yapmış bir idareci
tarafından inşa ettirildiği bazı kaynaklarda ifade edilmiştir, ancak bu bilgi kesinlik
kazanmamıştır
Mimarı: Bilinmemekte
Yapının Yeri: Yapı, tarihi kent dokusunun yoğunlaştığı Yenice Mahallesi’nde,
Caca Bey Medresesi ve Melik Gazi Kümbeti yakınlarında yer almaktadır
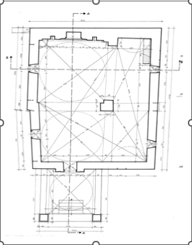
Plan ve Mimari Özellikleri: Moloz taş ve yer yer kesme taş ile inşa edilmiş olan cami, kuzey güney yönünde dikdörtgen planlı olup, harim kısmında art arda sıralı iki kubbe ile örtülüdür. Yapıya kuzey cephesinde baldaken tarzında kubbeli bir mekândan girilmektedir. Yapının süslemeli taş mihrabının yapımına ilişkin bir tarih bulunmamakla birlikte, mihrap Anadolu Selçuklu dönemi özellikleri göstermektedir. Ali Saim Ülgen Lale Camisinin yapılış amacının belli olmadığından bahsederek, kemerlerin içlerinin örülüp mihrap ve kapı ilave edilerek yapının camiye çevrildiğini belirtmektedir. Ve yapıyı tahminen 13. yüzyıla tarihlendirmektedir
Turkish
English
Russian
German



